Beschrijving
Ben je toe aan een volgende stap en droom je van een plek waar alles klopt? Een huis dat niet alleen ruimte en comfort biedt, maar óók rust, privacy én toekomstbestendige voorzieningen? Stop dan met zoeken: jouw nieuwe (t)huis aan Eemlandia 39 ligt op je te wachten!
**Wonen met de luxe van ruimte, licht en privacy**
Loop even mee – denk je eens in: een brede oprit waar je eenvoudig twee auto’s kwijt kunt, een handige aanpandige garage voor je fietsen, gereedschap en klusspullen, én een overkapping bij de voordeur en de inloopdeur van de garage. Geen nat pak als het regent – kleine dingen maken het verschil! De straat is heerlijk rustig, met alleen bestemmingsverkeer.
Kom binnen in een huis dat meteen voelt als thuis. In de ruime woonkamer met vloerverwarming blijft het ’s winters behaaglijk warm; in de zomer zet je de dubbele tuindeuren open naar het grote overkapte terras (serre). Wordt het je iets te heet, dan zorgt de geïntegreerde zonwering van de aluminium overkapping voor verkoeling.
**Genieten van het buitenleven – tuinieren of gewoon lekker luieren**
De achtertuin is ronduit spectaculair te noemen. Zo’n 270 m² eigen groene oase op het zonnige zuidoosten, royaal omsloten door volwassen bomen en struiken. Wil je de dag beginnen met een ontbijtje buiten, een zomerse barbecue tot in de avondzon, of juist wat verkoeling opzoeken? Het kan allemaal dankzij de combinatie van overdekt terras en het gezellige prieel, helemaal achterin de tuin.
Groene vingers zijn trouwens geen must; dankzij het slimme sproei-irrigatiesysteem blijven gazon, borders en planten ook zonder groene handen prachtig fris. Heb je zin om, samen met de kinderen, zelf lekkers te verbouwen? Er is ruimte genoeg voor een moestuintje – of je nu voor wat kruiden of een paar tomatenplantjes gaat.
**Vijf slaapkamers en volop leefruimte; iedereen een eigen plek**
Deze halfvrijstaande gezinswoning is gebouwd in 1997, wat betekent: degelijk, goed geïsoleerd en heerlijk praktisch van indeling. Je hebt de luxe van vijf echte slaapkamers, dus zelfs met een groot gezin, logees of een thuiskantoor kom je hier geen plek tekort. De badkamer is royaal opgezet, compleet uitgerust en tiptop verzorgd, dus ’s ochtends doucht iedereen relaxed zonder elkaar in de weg te lopen.
De woonkeuken – lekker afgesloten van de woonkamer – heeft openslaande deuren naar het terras. Koken met zicht op de tuin, iedereen gezellig aan tafel… hier ontstaan herinneringen! En moet er tussendoor huiswerk worden gemaakt, gewerkt of simpelweg in alle rust gelezen? Iedereen vindt z’n favoriete plekje in huis wel.
**Energiezuinig & helemaal klaar voor de toekomst**
Wie toekomstbestendig wil wonen, zit hier gebeiteld. Maar liefst 20 zonnepanelen sieren het dak – daar word je blij van, zeker met de huidige energieprijzen! Combineer dat met het energielabel A, de goede isolatie én vloerverwarming, en je woont comfortabel zonder je zorgen te maken over je energierekening. Fijn gevoel, toch?
**Centraal gelegen en toch in alle rust**
Bunschoten-Spakenburg is misschien wel één van de vriendelijkste dorpen van Midden-Nederland: de sfeer is gemoedelijk, de ligging ideaal. Vanuit Eemlandia fiets je binnen een paar minuten naar winkels, scholen en sportvoorzieningen. Snelweg, openbaar vervoer en natuur zijn allemaal binnen handbereik, maar zodra je thuiskomt begint de rust. En dat dagelijkse stukje vrijheid – wie wil dat nou niet?
**Samengevat: dé ideale gezinswoning voor slimme doorstromers**
Zoek je een huis waar toekomst, comfort en sfeer samenkomen? Met ruimte voor iedereen, volop groen rond de deur, energiezuinige voorzieningen en een fantastische tuin? Eemlandia 39 verrast aan alle kanten. Pak deze kans – huizen zoals deze zijn zeldzaam!
Maak gerust een afspraak en kom sfeer proeven; wie weet voel jij je hier binnenkort helemaal thuis. Tot ziens aan Eemlandia 39!
Indeling
Begane grond
Aan de voorzijde is er een gedeeltelijk overkapte eigen parkeerplaats, voor de garage.
Entree via de zijkant van de woning in een hal met toegang tot het toilet, de meterkast en de trapopgang naar de eerste verdieping.
Aan de voorzijde van de woning bevindt zich een ruime en lichte woonkamer, voorzien van een plavuizen vloer met vloerverwarming en radiatoren, gestuukte wanden en een glad gepleisterd plafond met platte plintafwerking. De houten kozijnen zijn voorzien van HR++ glas, wat bijdraagt aan het uitstekende energielabel (A).
Aan de achterzijde van de woning bevindt zich een gesloten keukenruimte, uitgerust met een moderne keuken (hoekopstelling, 2014) voorzien van diverse inbouwapparatuur, waaronder:
• inductiekookplaat
• afzuigkap
• combi-stoomoven met pyrolyse functie (2020)
• vaatwasser (2023)
• koelkast
• quooker
De keuken beschikt ook over vloerverwarming en radiatoren, evenals houten kozijnen met dubbel glas. Via dubbele tuindeuren is er directe toegang tot de zonnige achtertuin.
Vanuit de keuken is er toegang tot de bijkeuken, met aansluiting voor de wasmachine-en droger (aparte stroomgroepen), en verder doorloop naar de aangebouwde enkele garage.
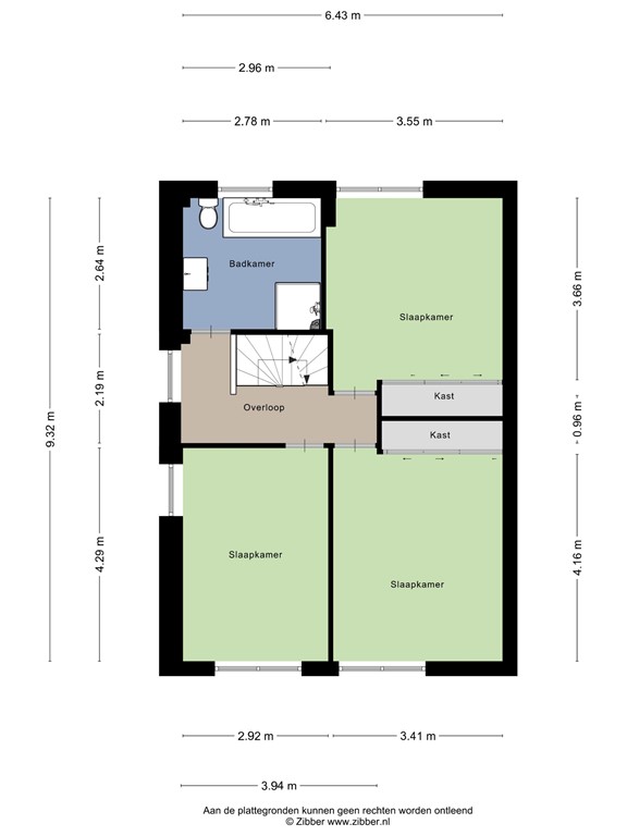
1e verdieping
Overloop met toegang tot drie slaapkamers, allen voorzien van:
• elektrisch bedienbare rolluiken
• houten kozijnen
• HR++ glas in de hoofdslaapkamer; dubbel glas in de overige slaapkamers
De twee grootste slaapkamers beschikken over een praktische inbouwkast.
De badkamer (1997) is volledig betegeld en uitgerust met:
• ligbad
• aparte douchecabine
• toilet
• wastafelmeubel
De badkamer beschikt tevens over vloerverwarming en een designradiator.
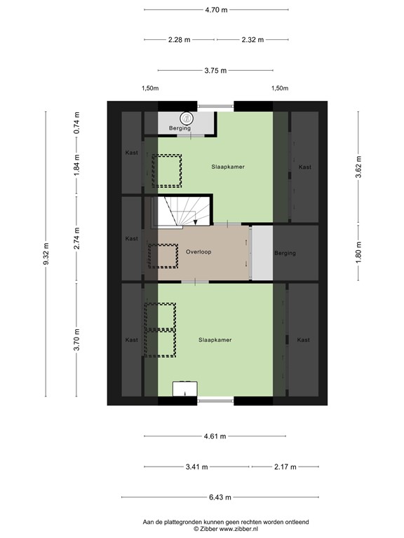
2e verdieping (zolder)
Via een vaste trap bereikt men de tweede verdieping.
Hier bevindt zich een voorzolder met dakraam en diepe inbouwkast alsmede toegang tot twee slaapkamers, beiden voorzien van dakramen en daglichttoetreding. In één van de slaapkamers staat- in een inbouwkast- de opstelling van de HR CV-ketel ( Intergas, 2018),
Tuin
De achtertuin is echt een parel. Door de ligging op het zuidoosten geniet je hier van de zon tot in de avond, terwijl de volwassen beplanting zorgt voor maximale privacy. Het overdekte terras is een verlengstuk van de woonkamer en keuken – perfect voor lange zomeravonden of een kop koffie in het vroege voorjaar. En met het sproeisysteem blijft alles groen, zonder moeite.
Bijzonderheden
Unieke wooneigenschappen:
Eigen oprit
Overkapping entree en inloopdeur garage
Vloerverwarming woonkamer en keukenruimte
Diepe groene achtertuin met veel privacy
Rustige woonomgeving, alleen
bestemmingsverkeer
20 zonnepanelen
Aluminium overkapping achtergevel (incl. zonwering)
Sproei-irrigatiesysteem in de achtertuin
Energielabel A
Tonzon vloerisolatie
Buiten schilderwerk (2025)
Voortuin vernieuwd (2025)
Plattegronden
177448411_1566921_eemla_begane_grond_first_design_20251001_236882.jpg
177448411_1566921_eemla_eerste_verdiepi_first_design_20251001_192830.jpg
177448411_1566921_eemla_tweede_verdiepi_first_design_20251001_84ad1a.jpg
177448411-288310018-se-140096638-1759325530133.png
177448411-288324115-se-140096638-1759325530133.png
177448411-288326272-se-140096638-1759325530133.png
177448411-288353524-se-140096638-1759325530133.png
177448411_1566921_eemla_prieel_first_design_20251001_a6cb9b.jpg