Beschrijving
Instapklare gezinswoning met moderne afwerking, eigen oprit en sfeervolle tuin met veranda – De Kluut 36, Bunschoten-Spakenburg
Ben je op zoek naar een moderne en verzorgde woning waar je zó in kunt? Dan is Kluut 36 precies wat je zoekt! Deze ruime en uitgebouwde middenwoning biedt alles wat je nodig hebt: een stijlvolle afwerking, eigentijds wooncomfort en een heerlijke tuin met veranda waar je het hele jaar door kunt genieten.
De woning straalt een warme en moderne sfeer uit. De natuurstenen vloer met vloerverwarming op de begane grond zorgt voor comfort en een luxe uitstraling, terwijl de royale woonkamer dankzij de uitbouw en dubbele tuindeuren heerlijk licht is. De moderne keuken is een echte blikvanger – uitgevoerd in een praktische opstelling en voorzien van hoogwaardige inbouwapparatuur, waaronder een Boretti gasfornuis, Quooker en vaatwasser.
Boven tref je drie goed bemeten slaapkamers en een moderne, complete badkamer met alles erop en eraan. De zolder biedt bovendien een extra kamer die ideaal is als thuiswerkplek, logeerkamer of tienerkamer. Dankzij de HR CV-ketel (2024) is de woning ook technisch helemaal up-to-date.
De buitenruimte is minstens zo aantrekkelijk. De achtertuin is in 2020 fraai aangelegd en voorzien van een prachtige vrijstaande veranda met glazen schuifdeuren – de perfecte plek om in elk seizoen te ontspannen. Aan de voorzijde kun je bovendien parkeren op eigen terrein, wel zo praktisch!
Kortom: Kluut 36 is een woning die tot in de puntjes is verzorgd en waar je direct kunt gaan genieten. Met zijn moderne afwerking, praktische indeling en sfeervolle buitenruimte is dit de ideale gezinswoning in een rustige en geliefde wijk van Bunschoten.
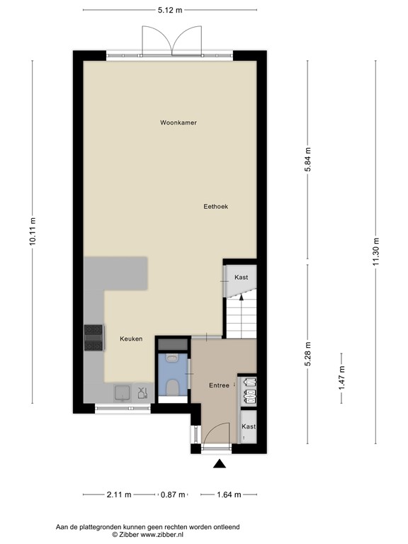
Indeling
Begane grond
Via de verzorgde entree kom je in de hal met meterkast, moderne toiletruimte met hangend toilet en fontein, en de trapopgang naar de eerste verdieping. Vanuit de hal bereik je de ruime uitgebouwde woonkamer, waar veel licht binnenvalt dankzij de dubbele tuindeuren aan de achterzijde.
De open keuken bevindt zich aan de voorzijde en is uitgevoerd in een praktische U-opstelling met hoogwaardige inbouwapparatuur. Zo vind je hier onder andere een Boretti gasfornuis met dubbele oven en 6-pits kookplaat met grillplaat, een vaatwasser, Quooker en een koel-vriescombinatie. De trapkast biedt extra bergruimte.
De begane grond is voorzien van een moderne natuurstenen vloer met vloerverwarming, wat zorgt voor een comfortabele en luxe uitstraling.
1e verdieping
Op de eerste verdieping biedt de overloop toegang tot drie slaapkamers van verschillende afmetingen. De slaapkamers aan de achterzijde zijn voorzien van rolluiken, ideaal voor verkoeling en verduistering.
De moderne badkamer (vernieuwd in 2020) is van alle gemakken voorzien: een ligbad, inloopdouche, wastafelmeubel, hangend toilet en een daglichtkoepel voor een natuurlijke lichtinval. Zowel natuurlijke als mechanische ventilatie zijn aanwezig.
2everdieping
De tweede verdieping beschikt over een voorzolder met wasmachineaansluiting, bergruimte en toegang tot een vierde slaapkamer. Deze kamer is voorzien van een groot dakraam, wastafel en bergruimte achter de knieschotten – een volwaardige extra kamer die perfect dienst kan doen als werk-, logeer- of tienerkamer.
Tuin
De onderhoudsvriendelijke achtertuin ligt op het westen en biedt volop zon en privacy. Achterin de tuin bevindt zich een fraaie veranda met glazen schuifwanden en houtkachel – een heerlijke plek om het hele jaar door te genieten. Vanuit de veranda is er toegang tot de stenen berging en de achterom via de steeg.
Bijzonderheden
unieke wooneigenschappen;
Uitgebouwde woonkamer
Moderne keuken met veel bergruimte
Moderne complete badkamer
Natuurstenen vloer op de begane grond met vloerverwarming
Parkeren op eigen terrein
HR CV ketel 2024
Fraai aangelegde achtertuin (2020)
Vrijstaande veranda met glazen schuifwand
Grote berging (2025)
Plattegronden
178431229_1587383_kluut_begane_grond_first_design_20251024_2757f8.jpg
178431229_1587383_kluut_eerste_verdiepi_first_design_20251024_81607f.jpg
178431229_1587383_kluut_tweede_verdiepi_first_design_20251024_985496.jpg
178431229_1587383_kluut_tuinhuis_first_design_20251024_0c1423.jpg
178431229-289991977-se-141811285-1761267536311.png
178431229-290012353-se-141811285-1761267536311.png
178431229-290017291-se-141811285-1761267536311.png
178431229-290014489-se-141811285-1761267536311.png