Beschrijving
In 2019 gebouwde gelijkvloerse woning met twee slaapkamers en een zeer royale, geïsoleerde vrijstaande stenen garage, geschikt voor auto, hobby en opslag.
Stel je voor: wakker worden in alle rust, genieten van het gemak van gelijkvloers wonen, terwijl alle voorzieningen om de hoek zijn. Lindenstraat 2 is die kans die je niet mag missen! Deze ruime, geschakelde vrijstaande woning – gebouwd in 2019 en voorzien van moderne gemakken – biedt precies wat je wenst als je zoekt naar comfort, veiligheid én energiezuinigheid.
**Een fijn huis met alles gelijkvloers**
Wie op zoek is naar een toekomstbestendige woning, kan hier zijn hart ophalen. In deze verrassend ruime woning liggen alle belangrijke leefruimtes op de begane grond. Zo hoef je je dus geen zorgen te maken over trappen lopen. De woonkamer is voorzien van een lichte PVC-vloer met vloerverwarming: heerlijk warm aan je voeten, zeker in de koudere maanden. Het hele huis ademt een prettige, eigentijdse sfeer waarin je je direct thuis zult voelen.
**Ruime ouderslaapkamer met eigen airco**
Aan de achterzijde van de woning vind je een royale ouderslaapkamer, verrassend groot en uitgerust met airconditioning. Zo slaap je altijd aangenaam koel, zelfs midden in een hittegolf. Daarnaast is er meer dan genoeg plek voor een prettig zitje of een extra kast, mocht je een flinke garderobe hebben. Vanuit je slaapkamer heb je snel toegang tot de moderne badkamer: gemak dient de mens!
**Moderne badkamer: alles binnen handbereik**
De badkamer op de begane grond is van alle gemakken voorzien: een ruime inloopdouche, een hangend toilet, wastafelmeubel met dubbele lades én ruimte voor zowel je wasmachine als je droger. Ook aan de details is gedacht – denk aan een designradiator en mechanische ventilatie. Die dagelijkse klusjes draaien zo op rolletjes! Je hoeft geen trap op met je wasgoed, hoe fijn is dat?
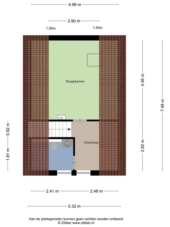
**Extra ruimte op de eerste verdieping**
Toch behoefte aan wat meer privacy of logeermogelijkheid? Op de bovenverdieping bevindt zich een tweede slaapkamer, ideaal voor gasten, kleinkinderen of als hobbyruimte. Deze verdieping beschikt eveneens over een praktisch tweede toilet en een wastafel met meubel: niemand hoeft te wachten! De linoleum vloer is onderhoudsvriendelijk en comfortabel.
**Vrijstaande garage met royale bergzolder**
Ben je een beetje handig of hou je ervan lekker te rommelen? De vrijstaande garage (met stahoogte bergzolder!) biedt volop mogelijkheden. Zet er met gemak je auto veilig binnen, gebruik de extra ruimte voor klussen of sla al je seizoensspullen overzichtelijk op. De bergzolder is verrassend ruim – al je kerstdecoratie en kampeerspullen vinden zonder moeite hun plekje.
**Zijtuin en rustige ligging**
Heerlijk buiten zitten doe je in de verzorgde zijtuin. Bovendien woon je aan een autoluwe straat, dus geen druk verkeer voor de deur. Boodschappen doen of een terrasje pakken? Het gezellige centrum bereik je ouderwets lopend of zo op de fiets. Alles wat je nodig hebt, ligt letterlijk om de hoek.
**Energiezuinig en toekomstgericht**
Met energielabel A ben je hier klaar voor de toekomst én houd je de energierekening laag. Dit huis is uitstekend geïsoleerd, wat niet alleen goed voelt voor je portemonnee, maar ook comfortabel wonen garandeert – zomer én winter. Daarbij is er veel aandacht besteed aan brandveiligheid.
**Ideale woning voor senioren**
Kortom: Lindenstraat 2 is bij uitstek geschikt voor ouderen die waarde hechten aan comfortabel en veilig wonen, met alle faciliteiten binnen handbereik en alles gelijkvloers bereikbaar. Tel daar de ruime garage, de praktische indeling en de fijne locatie bij op en je snapt: dit is een buitenkans die snel weg zal zijn!
Ben jij toe aan zorgeloos wonen, met nét dat beetje extra? Maak dan snel een afspraak voor een vrijblijvende bezichtiging en laat je verrassen door de ruimte en mogelijkheden van deze prachtige woning!
Indeling
Parkeren op eigen terrein voor de garage, entree aan de voorzijde, overkapping boven de voordeur, hal met meterkast en trapopgang naar de verdieping, toegang tot de knusse woonkamer v.v. een praktische pvc vloer en vloerverwarming, erker aan de voorzijde met vrij zicht over voorliggende plantsoen/parkje. In de woonkamer bevindt zich een trap bergkast en dubbele tuindeuren met toegang tot de op het westen liggende achtertuin. Een open keukenruimte met keuken in hoekopstelling die is v.v. inbouwapparatuur o.a. inductie kookplaat, vaatwasser, combi-oven, koelkast met vriesvak, afzuigkap. Via schuifdeur toegang tot de grote ouderslaapkamer met lekker veel lichtinval en v.v. airconditioning, via de schuifdeur toegang tot de frisse badkamer met o.a. inloopdouche, hangend toilet, wasmachine- en drogeraansluitig, wastafel met dubbel lades, designradiator en mechanische ventilatie.
1e verdieping
Voorzolder met hr cv ketel opstelling (Intergas 2019), MV-box, via deur toegang tot de extra sanitaire ruimte v.v. hangend toilet en wastafel met dubbel lades, toegang tot de geïsoleerde bergzolder met groot dakraam (mogelijkheid 2e slaapkamer). Op deze verdieping ligt een linoleum vloer.
Vrijstaande geïsoleerde garage met bergzolder.
De garage biedt ruimte voor stalling van een auto, de bergzolder is op stahoogte.
Tuin
Onderhoudsvriendelijke achtertuin met bezonning vanuit het Westen. Vrij zicht op het plantsoen/parkje.
Bijzonderheden
Unieke wooneigenschappen;
Gelijkvloers wonen
Kunststof kozijnen en deuren v.v. tripel glas
Vloerverwarming op de gehele begane grond
Buitenzonwering
Achtertuin met gunstige ligging en veel privacy
6 zonnepanelen
Eigen oprit
Vrijstaande geïsoleerde garage met bergzolder
Airconditioning
Schuifhor tbv dubbele tuindeuren
Plattegronden
179032198_1588370_linde_begane_grond_first_design_20260127_6104a5.jpg
179032198_1588370_linde_eerste_verdiepi_first_design_20260127_fe84f7.jpg
179032198_1588370_linde_garage_first_design_20260127_6f70ff.jpg
179032198_1588370_linde_zolder_first_design_20260127_d3e439.jpg
179032198-290984650-se-147960184-1769526863530.png
179032198-291011842-se-147960184-1769526863530.png
179032198-291012331-se-147960184-1769526863530.png
179032198-291013117-se-147960184-1769526863530.png