Beschrijving
Jij en je gezin verdienen het beste en dit fantastische woonhuis aan Polkampen 4 in BUNSCHOTEN-SPAKENBURG is precies wat jullie nodig hebben! Dit gezellige tussenwoning, gebouwd in 2011, ligt in de nieuwbouwwijk “ Rengerswetering” en is perfect voor jonge gezinnen en starters zoals jij!
**Gezinsvriendelijke omgeving:**
Je zal verliefd worden op de kindvriendelijke omgeving waar jouw kleintjes veilig kunnen spelen. De hof is voorzien van speeltoestellen en er is een groenstrook om heerlijk buiten te genieten.
**Comfortabel en modern:**
De uitgebouwde woonkamer biedt voldoende ruimte voor quality-time met het gezin. De begane grond is voorzien van vloerverwarming onder fraaie vloertegels. Ook profiteer je van een prachtig aangelegde achtertuin met een handige achterom naar het grote parkeerterrein.
**Luxe extra's:**
Op de 1e verdieping zijn elektrisch bedienbare rolluiken geïnstalleerd voor extra privacy en gemak. De ouderslaapkamer is uitgerust met airconditioning en een vaste kledingkast met schuifdeuren. Hoe handig is dat?
**Ruimte voor groei:**
De open zolderverdieping biedt voldoende hoogte om extra kamers te creëren, waardoor er altijd genoeg leefruimte is voor het hele gezin.
**Alles binnen handbereik:**
Met voorzieningen zoals een supermarkt, basisschool en kinderopvang op loopafstand, hoef je nooit ver te gaan voor jouw dagelijkse behoeften.
Mis deze kans niet om jouw droomhuis te vinden! Neem vandaag nog contact met ons op om een bezichtiging te regelen. Dit is de plek waar jij en je gezin thuis kunnen komen!
Indeling
Parkeren doet u op het grote parkeerterrein achter de woning, entree is aan de voorzijde van de woning, Hal met toiletruimte v.v. modern hangend toilet en fontein, trapopgang naar de 1e verdieping, meterkast, toegang tot de uitgebouwde woonkamer. De royale woonkamer is v.v. een tegelvloer met vloerverwarming, glad gepleisterd plafond met platte plafondplint en inbouwspots. Inloopdeur in de achtergevel met toegang tot de fraai aangelegde achtertuin met vrijstaande houten berging en achterom.
In de tuingerichte woonkamer is er een directe verbinding met de open keukenruimte. In de keukenruimte staat een moderne hoekkeuken met inbouwapparatuur o.a. Amerikaanse koelkast (2024), Quooker, 6-pits gasfornuis met grote oven, magnetron, vaatwasser( 2024), composiet werkblad. Vanuit de keukenruimte is er zicht op de groenstrook aan de voorzijde met speeltoestellen voor de kinderen.
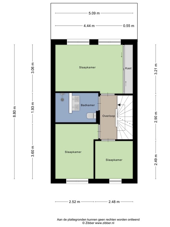
1e verdieping
Overloop met toegang tot drie slaapkamers, alle slaapkamers zijn uitgerust met elektrisch bedienbare rolluiken. De ouderslaapkamer beschikt over een vaste kastruimte met schuifdeuren en airconditioning. Moderne badkamer met grote inloopdouche, hangend toilet en wastafel met dubbele mengkranen met berglades.
2e verdieping
Grote open zolderverdieping die naar eigen inzicht is in te delen: bv meerdere kamers en aparte wasruimte. Bergruimte achter de knieschotten, groot Velux dakraam, wasmachine-aansluiting, hr cv ketel opstelling en mv-box.
Tuin
Fraai aangelegde achtertuin (2021) met natuurstenen tegels, pergola en vaste plantenbakken. Vrijstaande houten berging in de achtertuin, achterom naar het achterliggende parkeerterrein.
Bijzonderheden
Unieke wooneigenschappen;
Kindvriendelijke woonomgeving met speeltoestellen
Uitgebouwde woonkamer
Vloerverwarming
Fraai aangelegde achtertuin
Ruime parkeermogelijkheden
Rolluiken op de 1e verdieping
Airconditioning ouderslaapkamer
Vaste kledingkast met schuifdeuren ouderslaapkamer
Open zolderverdieping voor extra leefruimte
Energielabel A
Plattegronden
172478185_1551121_polka_begane_grond_first_design_20250509_f61562.jpg
172478185_1551121_polka_eerste_verdiepi_first_design_20250509_0387e5.jpg
172478185_1551121_polka_tweede_verdiepi_first_design_20250509_9cfec3.jpg
172478185-279503452-se-129615121-1746796351600.png
172478185-279510844-se-129615121-1746796351600.png
172478185-279514321-se-129615121-1746796351600.png
172478185-279515743-se-129615121-1746796351600.png
172478185_1551121_polka_berging_first_design_20250509_b5cf17.jpg