Beschrijving
Sfeervolle twee-onder-een-kapwoning met eigen oprit, vrijstaande berging en zonnige tuin op het zuiden!
Welkom aan de Prins Willem Alexanderstraat 30 – een fijne plek om thuis te komen! Deze twee-onder-een-kapwoning uit 1960 ligt in de populaire Oranjebuurt van Bunschoten-Spakenburg, op korte loopafstand van het gezellige dorpscentrum. De woning beschikt over een eigen oprit, een vrijstaande berging en een zonnige achtertuin op het zuiden van maar liefst ca. 94 m².
Binnen vindt u een ruime en lichte woonkamer, mede dankzij de keuken in de aanbouw aan de achterzijde. De indeling is praktisch en biedt volop mogelijkheden om de woning naar eigen wens te moderniseren. Hier kunt u echt uw droomhuis van maken!
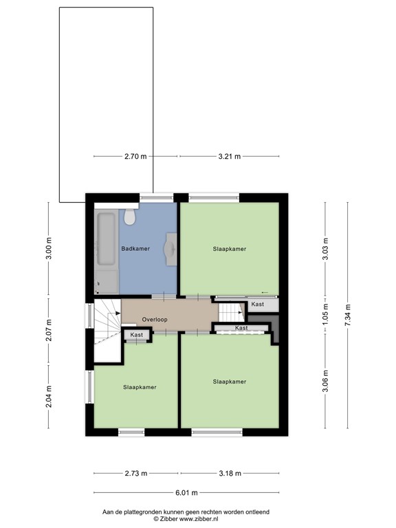
Op de verdieping bevinden zich drie goed bemeten slaapkamers en een badkamer. De zolderverdieping biedt extra bergruimte en mogelijkheid voor een vierde slaapkamer of werkkamer.
De ligging is ideaal: rustig, kindvriendelijk en toch dicht bij alle voorzieningen zoals winkels, scholen, sportfaciliteiten en het historische centrum van Spakenburg.
Pluspunten van deze woning:
• Ruime twee-onder-een-kapwoning met veel potentie
• Gelegen in de gewilde Oranjebuurt
• Eigen oprit en vrijstaande berging
• Zonnige achtertuin op het zuiden (ca. 94 m²)
• Ruime woonkamer dankzij keuken in de aanbouw
• 3 slaapkamers aanwezig, een 4e slaapkamer mogelijk
• Op loopafstand van het centrum en diverse voorzieningen
Kortom: Deze woning biedt een uitstekende basis voor wie op zoek is naar een ruime gezinswoning met karakter en mogelijkheden, op een ideale plek in Bunschoten-Spakenburg!
Maak snel een afspraak voor een rondleiding met de makelaar !
Indeling
Parkeren op eigen terrein, entree aan de voorzijde van de woning, hal met meterkast, trapopgang met trap bergkast, toegang tot de tuingerichte woonkamer, dubbele tuindeuren naar de op het zuiden gelegen achtertuin. Vanuit de woonkamer toegang tot de gesloten keukenruimte. In deze aangebouwde keukenruimte staat een dubbele wandkeuken met inbouwapparatuur. Aan de keukenruimte grenst het achter portaal, bijkeuken en toiletruimte. Vanuit het achter portaal is er toegang tot de achtertuin. Vrijstaande grage in de achtertuin.
1e verdieping
Overloop met vast trap opgang tot de 2e verdieping en toegang tot drie slaapkamers. Twee slaapkamers v.v. vaste kastruimte. Badkamer met ligbad, douchecabine, hangend toilet en wastafel met meubel.
2e verdieping
Open zolderverdieping met dakraam, mogelijkheid voor een 4e slaapkamer, wastafel, HR CV ketelopstelling, bergruimte achter de knieschotten.
Tuin
Onderhoudsvriendelijke achtertuin met bezonning vanuit het Zuiden
Bijzonderheden
Unieke wooneigenschappen;
• Keuken in de aanbouw
• Tuin op het Zuiden
• Airconditioning in de woonkamer
• Rookkanaal voor houtkachel
• Vloerverwarming onder tegelvloer (betonnen vloer)
• Bijkeuken met wasmachine-aansluiting
• Gunstige ligging t.o.v. het centrum (voorzieningen op loop - fietsafstand
Plattegronden
177734746_1580255_prins_begane_grond_first_design_20251007_a1a851.jpg
177734746_1580255_prins_eerste_verdiepi_first_design_20251007_a61ab7.jpg
177734746_1580255_prins_tweede_verdiepi_first_design_20251007_e33ad9.jpg
177734746_1580255_prins_berging_first_design_20251007_745dd8.jpg
177734746-288804862-se-140484262-1759820142285.png
177734746-288827848-se-140484262-1759820142285.png
177734746-288829603-se-140484262-1759820142285.png
177734746-288829936-se-140484262-1759820142285.png