Beschrijving
Luxe, uitgebouwde en gasloze twee-onder-een-kapwoning met garage, eigen oprit en hoogwaardige afwerking
Deze uitstekend onderhouden en volledig gasloze 2-onder-1-kapwoning combineert comfort, duurzaamheid en luxe op een perfecte manier. De woning beschikt over een aanpandige garage, eigen oprit en is op alle verdiepingen voorzien van vloerverwarming.
De uitgebouwde en tuingerichte woonkamer is licht en sfeervol en beschikt over een fraaie gashaard (propaangas) en directe toegang tot de fraaie en sfeervolle achtertuin. De woonkamer is door stalen schuifdeuren gescheiden van de royale woon-leefkeuken met modern kookeiland en diverse hoogwaardige Siemens Studioline inbouwapparatuur, ideaal voor kookliefhebbers en gezellige momenten met familie en vrienden.
Op de begane grond vindt u tevens een moderne toiletruimte met hangend toilet en fontein. Over de gehele begane grond ligt een warme en stijlvolle PVC-vloer in Hongaarse punt, perfect gecombineerd met vloerverwarming.
De eerste verdieping telt drie ruime slaapkamers, waarvan de ouderslaapkamer is voorzien van airconditioning voor zowel koelen als verwarmen. Op de overloop bevindt zich een separate toiletruimte. De moderne badkamer is uitgerust met een dubbele wastafel met meubel en een royale inloopdouche met zowel een regen- als handdouche.
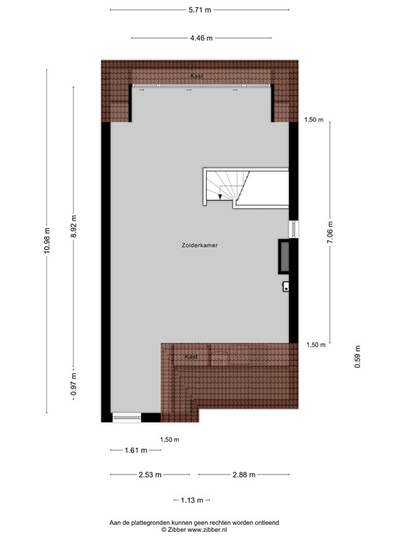
De woning beschikt over een indrukwekkende open zolderverdieping van circa 50 m² woonoppervlak, voorzien van een grote kunststof dakkapel en airconditioning met hoge capaciteit. Deze verdieping is flexibel in te delen in meerdere kamers en leent zich uitstekend voor extra slaapkamers, een werkruimte of hobbyruimte.
Duurzaamheid staat centraal: de woning is volledig gasloos en voorzien van 15 zonnepanelen.
De fraai aangelegde achtertuin is voorzien van verlichting en biedt een heerlijke plek om tot rust te komen.
Kortom: een instapklare, luxe en energiezuinige woning met verrassend veel ruimte, gelegen op een hele fijne locatie.
Indeling
Parkeren op eigen grond naast de woning, entree/hal met meterkast en modern toilet. Uitgebouwde, tuingerichte woonkamer met veel lichtinval, sfeervolle gashaard (propaangas) en toegang tot de achtertuin. Via stalen schuifdeuren bereikt u de royale woon-leefkeuken met kookeiland en hoogwaardige Siemens Studioline inbouwapparatuur. Luxe PVC-vloer in Hongaarse punt met vloerverwarming. Aangebouwde garage en eigen oprit.
1e verdieping
Overloop met separaat toilet. Drie ruime slaapkamers, waarvan de ouderslaapkamer is voorzien van airconditioning. Moderne badkamer met dubbele wastafel en royale inloopdouche met regen- en handdouche. Vloerverwarming op de gehele verdieping.
2e verdieping
Imposante open zolder van ca. 50 m² met grote dakkapel en airconditioning met hoge capaciteit. Flexibel in te delen in meerdere slaapkamers, werk- of hobbyruimte. Vloerverwarming aanwezig.
Tuin
Strak aangelegde, moderne tuin met een ruim terras, tuinverlichting, gazon en een houten vlonderpad. Achterin een sfeervolle loungehoek onder een pergola, omgeven door groen en met veel privacy. De tuin grenst aan water en biedt een vrij en rustgevend uitzicht.
Bijzonderheden
Unieke wooneigenschappen;
Luxe woon-leefkeuken
Moderne luxe badkamer
Gasloze woning met warmtepomp
Sfeervolle gashaard (propaangas)
Een Hongaarse punt PVC vloer (elegant en klassiek)
Vloerverwarming op alle verdiepingen
15 zonnepanelen
Airconditioning (verwarmen en koelen) op de 1e en 2e verdieping
Stalen (schuif) deuren keuken en woonkamer
Aanpandige garage
Eigen oprit
Fraai aangelegde achtertuin grenzend aan het water met vlonder
Open ligging met vrij zicht
Plattegronden
181279951_1602273_voors_begane_grond_first_design_20260117_301a27.jpg
181279951_1602273_voors_eerste_verdiepi_first_design_20260117_faa4fe.jpg
181279951_1602273_voors_tweede_verdiepi_first_design_20260117_3eb0c6.jpg
181279951-294776986-se-147181525-1768640844396.png
181279951-294797920-se-147181525-1768640844396.png
181279951-294799051-se-147181525-1768640844396.png