Beschrijving
Deze instapklare, tussenwoning (type rug-aan-rug) uit 2019 is gelegen in de kindvriendelijke en rustige woonomgeving van de nieuwbouwwijk Rengerswetering. De woning biedt zowel comfort als moderne afwerkingen en is ideaal voor zowel jonge gezinnen als 50+ en 60+ bewoners.
Bij binnenkomst in de woning wordt u verwelkomd door een sfeervolle woonkamer met fraaie parketvloer, voorzien van vloerverwarming, wat zorgt voor een aangename sfeer in het hele huis. De open keuken is in hoekopstelling geplaatst en is uitgerust met moderne inbouwapparatuur en een handige lunchbar. Hier heeft u volop ruimte om te koken en gezellig te dineren.
Op de eerste verdieping bevinden zich twee ruime slaapkamers, die voldoende lichtinval bieden. De moderne badkamer is voorzien van een inloopdouche, een hangend toilet en een wastafelmeubel met een hangende kast, alles in een strak en eigentijds design.
De woning heeft drie slaapkamers in totaal, perfect voor een gezin, werkruimte of hobbykamer. De derde slaapkamer bevindt zich op de tweede verdieping.
De woning beschikt over een A-label, wat zorgt voor energiezuinig wonen. Daarnaast zijn er 8 zonnepanelen geïnstalleerd, wat bijdraagt aan een lagere energierekening en een duurzaam leven.
De tuin is netjes aangelegd, daarnaast biedt de vrijstaande houten berging ruimte voor het opbergen van tuingereedschap, fietsen of andere spullen.
De locatie is perfect voor gezinnen; zowel een supermarkt als een school liggen op loopafstand. Daarnaast is het huis goed bereikbaar, en biedt de omgeving voldoende groen en speelruimte voor kinderen. Dit maakt de woning een uitstekende keuze voor jonge gezinnen, maar ook voor senioren die op zoek zijn naar rust en gemak in een moderne woonwijk.
Kortom, een prachtige woning die alles biedt voor een comfortabel en zorgeloos leven!
Indeling
Parkeren voor de deur op de openbare parkeerruimte(voldoende parkeergelegenheid)
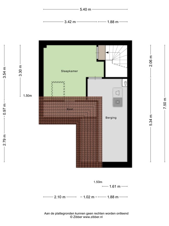
Instapklare rug-aan-rug woning met vrijstaande berging, entree, hal met meterkast, toegang tot de sfeervolle woonkamer met open keukenruimte, keuken in U vorm met lunch bar v.v. een inductie kookplaat, afzuigkap, combi-oven/magnetron, vaatwasser, koel-vriescombinatie. Op de vloer ligt verlijmd parket v.v. vloerverwarming, gang met toiletruimte v.v. hangend toilet en fontein, trapopgang naar de 1e verdieping.
Vrijstaande houten berging.
1e verdieping
Overloop met toegang tot de moderne badkamer v.v. inloopdouche met glazen scheidingswand, hangend toilet, wastafelmeubel met twee lades en hangkast. Mechanische ventilatie. Twee slaapkamers waarvan de ouderslaapkamer is v.v. een elektrisch bedienbare rolluik, 2e slaapkamer met dakraam v.v. zonwering. Vloerbedekking op de slaapkamers en gestuukte wanden (spachtelputz), tegelvloer in de badkamer.
2e verdieping
Overloop met toegang tot 3e slaapkamer v.v. dakraam met zonwering , bergruimte achter de knieschotten, inbouwspots, glad gestuukte wanden. Was,- en bergruimte v.v. grote kleding kast (roerend), hr cv ketelopstelling (Intergas 2019), MV-box.
Tuin
Verzorgde voortuin op het oosten met ochtendzon, sierbestrating en groene borders. Ideaal voor een zitje of een kop koffie in de ochtend. Lage beplanting zorgt voor een open en nette uitstraling.
Bijzonderheden
Unieke wooneigenschappen;
Kindvriendelijke woonomgeving
Voorzieningen op loopafstand
Energiezuinige woning
8 zonnepanelen
Moderne keuken en badkamer
Vloerverwarming op de begane grond
Drie slaapkamers
Instapklaar
Eigen berging
Plattegronden
175671976_1572412_zandk_begane_grond_first_design_20250812_558baf.jpg
175671976_1572412_zandk_eerste_verdiepi_first_design_20250812_22586d.jpg
175671976_1572412_zandk_tweede_verdiepi_first_design_20250812_63b8d5.jpg
175671976_1572412_zandk_berging_first_design_20250812_538191.jpg
175671976-285171787-se-136353781-1755016977654.png
175671976-285181006-se-136353781-1755016977654.png
175671976-285184507-se-136353781-1755016977654.png
175671976-285185995-se-136353781-1755016977654.png