Verkocht onder voorbehoud: 2-1 Kapwoning met A-label, Vrijstaande Garage & op Loopafstand van het Centrum!
€ 760.000,- k.k.
| Adres: | Groen van Prinsterersingel 43, 3752 DC Bunschoten-Spakenburg |
| Type object | Woonhuis, eengezinswoning, twee onder een kap woning |
| Perceeloppervlakte | 255 m² |
| Woonoppervlakte | 149 m² |
| Aanvaarding | In overleg |
| Status | Verkocht onder voorbehoud |
Algemeen
Start het nieuwe jaar in uw nieuwe thuis!
Deze fraaie 2-onder-1-kapwoning biedt alles wat u zoekt: ruimte, comfort en een prettige woonomgeving. Met een aantrekkelijke vanafprijs is dit het perfecte moment om de stap naar uw volgende woning te zetten.
Ben je op zoek naar een riante gezinswoning in hartje Bunschoten-Spakenburg waar je zo in kunt trekken? Zet dan Groen van Prinsterersingel 43... Meer informatie
Deze fraaie 2-onder-1-kapwoning biedt alles wat u zoekt: ruimte, comfort en een prettige woonomgeving. Met een aantrekkelijke vanafprijs is dit het perfecte moment om de stap naar uw volgende woning te zetten.
Ben je op zoek naar een riante gezinswoning in hartje Bunschoten-Spakenburg waar je zo in kunt trekken? Zet dan Groen van Prinsterersingel 43... Meer informatie
Locatie
Kenmerken
| Referentienummer | 05914 |
| Vraagprijs | € 760.000,- k.k. |
| Elektra | € 100,- |
| Gas | € 120,- |
| Status | Verkocht onder voorbehoud |
| Aanvaarding | In overleg |
| Aangeboden sinds | Maandag 13 oktober 2025 |
| Laatste wijziging | Vrijdag 13 maart 2026 |
| Type object | Woonhuis, eengezinswoning, twee onder een kap woning |
| Soort bouw | Bestaande bouw |
| Bouwperiode | 1969 |
| Dakbedekking | Dakpannen |
| Type dak | Zadeldak |
| Isolatievormen | Dakisolatie Dubbel glas Muurisolatie Spouwmuren Vloerisolatie Volledig geïsoleerd |
| Perceeloppervlakte | 255 m² |
| Woonoppervlakte | 149 m² |
| Inhoud | 526 m³ |
| Oppervlakte externe bergruimte | 15 m² |
| Oppervlakte gebouwgebonden buitenruimte | 3 m² |
| Aantal bouwlagen | 3 |
| Aantal kamers | 5 (waarvan 4 slaapkamers) |
| Aantal badkamers | 1 (en 1 apart toilet) |
| Ligging | Dichtbij openbaar vervoer Nabij school |
| Type | Achtertuin |
| Hoofdtuin | Ja |
| Oriëntering | West |
| Staat | Normaal |
| Energielabel | A |
| CV ketel | HR CV Ketel Remeha |
| Warmtebron | Gas |
| Bouwjaar | 2022 |
| Combiketel | Ja |
| Eigendom | Eigendom |
| Aantal parkeerplaatsen | 1 |
| Warm water | CV-ketel |
| Verwarmingssysteem | Airconditioning Centrale verwarming Vloerverwarming (gedeeltelijk) |
| Ventilatie methode | Natuurlijke ventilatie |
| Keukenvoorzieningen | Inbouwapparatuur Spoeleiland |
| Badkamervoorzieningen | Dubbele wastafel Inloopdouche Ligbad Toilet Vloerverwarming Wastafelmeubel |
| Parkeergelegenheid | Vrijstaande stenen garage |
| Heeft airco | Ja |
| Heeft een alarm | Ja |
| Glasvezelaansluiting aanwezig | Ja |
| Tuin aanwezig | Ja |
| Heeft een garage | Ja |
| Beschikt over een internetverbinding | Ja |
| Heeft rolluiken | Ja |
| Heeft een dakraam | Ja |
| Heeft zonnepanelen | Ja |
| Kadastrale aanduiding | Bunschoten F 816 |
| Perceeloppervlakte | 255 m² |
| Omvang | Geheel perceel |
| Eigendomsituatie | Eigen grond |
Beschrijving
Start het nieuwe jaar in uw nieuwe thuis!
Deze fraaie 2-onder-1-kapwoning biedt alles wat u zoekt: ruimte, comfort en een prettige woonomgeving. Met een aantrekkelijke vanafprijs is dit het perfecte moment om de stap naar uw volgende woning te zetten.
Ben je op zoek naar een riante gezinswoning in hartje Bunschoten-Spakenburg waar je zo in kunt trekken? Zet dan Groen van Prinsterersingel 43 zeker bovenaan je lijstje! Deze keurige twee-onder-een-kapwoning is vanaf de stoep al een plaatje, en zodra je binnenstapt wordt het alleen maar beter. Hier vind je echt alles wat je zoekt: ruimte, comfort, energiezuinigheid én dat fijne gevoel van thuis. Een buitenkans voor doorstromers en jonge gezinnen die klaar zijn voor de volgende stap!
Ruimte om te leven en te genieten
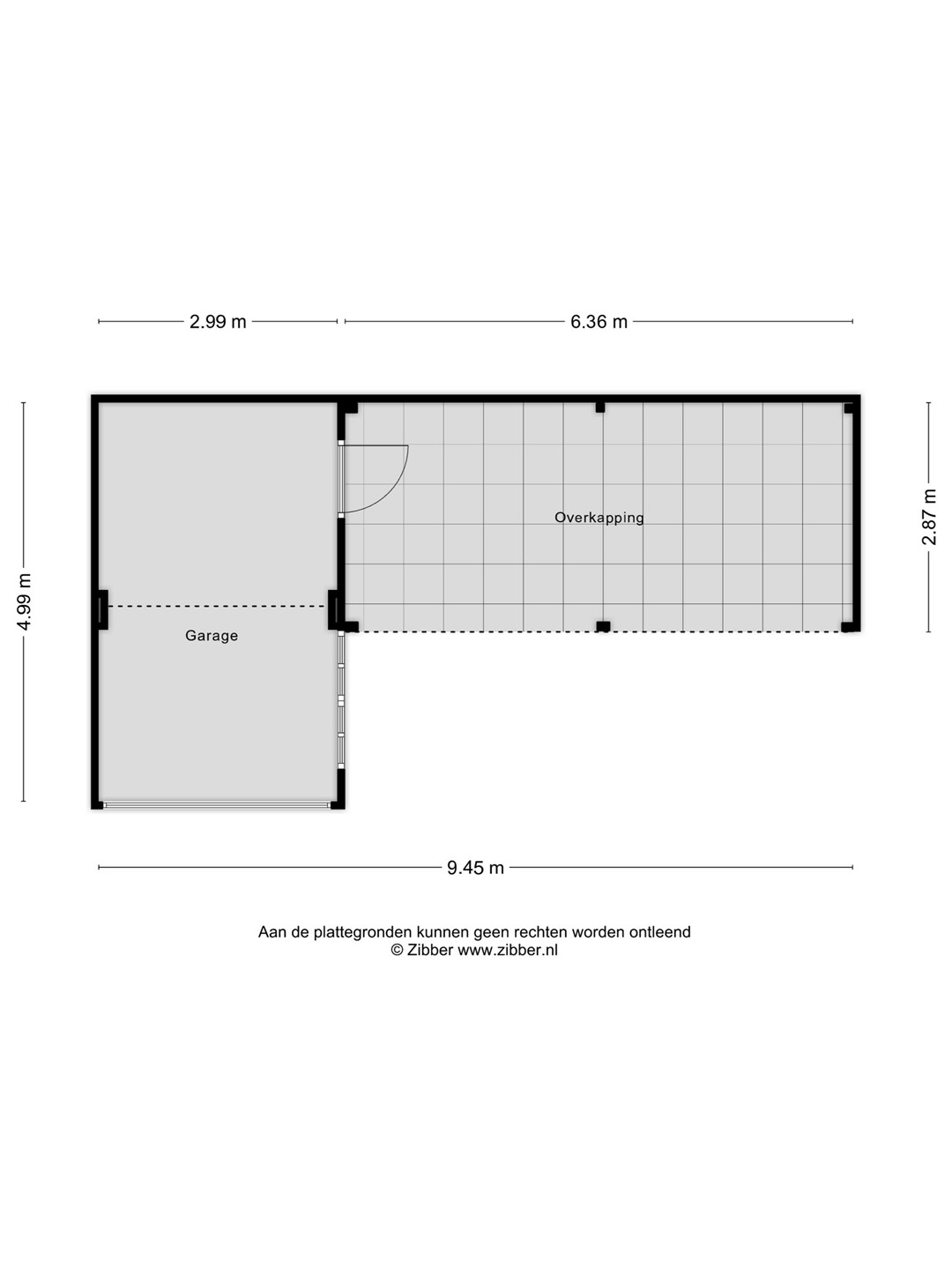
Deze woning uit 1969 is door de jaren heen niet alleen uitstekend onderhouden, maar ook flink gemoderniseerd. De oprit biedt plaats aan meerdere auto's, terwijl je de garage perfect kunt gebruiken voor hobby, opslag of gewoon om je auto lekker droog te stallen. Dankzij de aanbouw aan de achterzijde en de charmante erker aan de voorkant voelt de woonkamer heerlijk ruim en licht aan. Bovendien geniet je op elk moment van het jaar van het comfort van airconditioning op alle verdiepingen – een grote plus tijdens warme zomerdagen óf als je het hele huis snel warm wilt stoken in de winter.
Modern wooncomfort met een knipoog naar gezelligheid
Loop je door naar de royale woonkeuken, dan valt direct het moderne spoeleiland op. Je kijkt je ogen uit dankzij de fraaie inbouwapparatuur, ideaal voor fanatieke (of juist gemak zoekende!) thuiskoks. De keuken is het perfecte hart van het huis; hier wordt gelachen, gekookt, gespeeld en gegeten. Net zo praktisch: aansluitend vind je de ruime bijkeuken met plek voor de wasmachine en droger. Zeg maar dag tegen rondslingerende wasmanden in de woonkamer!
Strak afgewerkt en helemaal instapklaar
Aan onderhoud hoef je voorlopig geen tijd of zorgen te besteden: het schilderwerk is namelijk recent uitgevoerd en overal is gekozen voor hoogwaardige materialen. Op de begane grond ligt een praktische vinyl vloertegel mét vloerverwarming, dus koude voeten behoren definitief tot het verleden. En wist je dat het huis beschikt over twee kunststof dakkapellen, waardoor er maar liefst twee extra slaapkamers zijn gecreëerd? Perfect voor kinderen, een thuiskantoor of logeerkamer.
Energiezuinig wonen, volop comfort
Met maar liefst 23 zonnepanelen op het dak hoef je niet te schrikken van je energierekening: deze topper heeft energielabel A! Ook dat is tegenwoordig natuurlijk een dik pluspunt. Het zorgt niet alleen voor lagere maandlasten, maar ook voor een prettig leefklimaat en een toekomstbestendige investering.
Buitenleven op z’n best
De onderhoudsvriendelijke achtertuin van circa 90 m² is een oase van rust middenin het bruisende centrum. Achterin de tuin staat een royale, vrijstaande veranda compleet met een keukenblok: het ultieme recept voor lange zomeravonden met familie en vrienden. Barbecue erbij, wijntje in de hand – laat die mooie dagen maar komen! Je hebt hier alle privacy en ruimte om zowel te relaxen als feestjes te geven.
Droomplek voor gezinnen en doorstromers
Kortom, dit huis is jouw kans om te wonen in een moderne, perfect afgewerkte gezinswoning met alles erop en eraan. Je woont hier op een fijne, centrale locatie – winkels, scholen en sportfaciliteiten zijn binnen handbereik, maar ook natuur en uitvalswegen liggen om de hoek. Door de ruime opzet, het hoge afwerkingsniveau, en de ideale indeling is de woning instapklaar voor wie niet wil klussen, maar gewoon prettig wil wonen.
Nieuwsgierig geworden?
Steek de handen uit de mouwen is hier echt niet nodig; je hoeft alleen nog je verhuisdozen uit te pakken. Wil jij deze veelzijdige, duurzame en vooral gezellige tweekapper mét garage binnenkort jouw thuis noemen? Plan dan snel een bezichtiging en ervaar zelf het comfort, de ruimte en de sfeer van Groen van Prinsterersingel 43. Hier begint het nieuwe hoofdstuk voor jou en je gezin!
Deze fraaie 2-onder-1-kapwoning biedt alles wat u zoekt: ruimte, comfort en een prettige woonomgeving. Met een aantrekkelijke vanafprijs is dit het perfecte moment om de stap naar uw volgende woning te zetten.
Ben je op zoek naar een riante gezinswoning in hartje Bunschoten-Spakenburg waar je zo in kunt trekken? Zet dan Groen van Prinsterersingel 43 zeker bovenaan je lijstje! Deze keurige twee-onder-een-kapwoning is vanaf de stoep al een plaatje, en zodra je binnenstapt wordt het alleen maar beter. Hier vind je echt alles wat je zoekt: ruimte, comfort, energiezuinigheid én dat fijne gevoel van thuis. Een buitenkans voor doorstromers en jonge gezinnen die klaar zijn voor de volgende stap!
Ruimte om te leven en te genieten
Deze woning uit 1969 is door de jaren heen niet alleen uitstekend onderhouden, maar ook flink gemoderniseerd. De oprit biedt plaats aan meerdere auto's, terwijl je de garage perfect kunt gebruiken voor hobby, opslag of gewoon om je auto lekker droog te stallen. Dankzij de aanbouw aan de achterzijde en de charmante erker aan de voorkant voelt de woonkamer heerlijk ruim en licht aan. Bovendien geniet je op elk moment van het jaar van het comfort van airconditioning op alle verdiepingen – een grote plus tijdens warme zomerdagen óf als je het hele huis snel warm wilt stoken in de winter.
Modern wooncomfort met een knipoog naar gezelligheid
Loop je door naar de royale woonkeuken, dan valt direct het moderne spoeleiland op. Je kijkt je ogen uit dankzij de fraaie inbouwapparatuur, ideaal voor fanatieke (of juist gemak zoekende!) thuiskoks. De keuken is het perfecte hart van het huis; hier wordt gelachen, gekookt, gespeeld en gegeten. Net zo praktisch: aansluitend vind je de ruime bijkeuken met plek voor de wasmachine en droger. Zeg maar dag tegen rondslingerende wasmanden in de woonkamer!
Strak afgewerkt en helemaal instapklaar
Aan onderhoud hoef je voorlopig geen tijd of zorgen te besteden: het schilderwerk is namelijk recent uitgevoerd en overal is gekozen voor hoogwaardige materialen. Op de begane grond ligt een praktische vinyl vloertegel mét vloerverwarming, dus koude voeten behoren definitief tot het verleden. En wist je dat het huis beschikt over twee kunststof dakkapellen, waardoor er maar liefst twee extra slaapkamers zijn gecreëerd? Perfect voor kinderen, een thuiskantoor of logeerkamer.
Energiezuinig wonen, volop comfort
Met maar liefst 23 zonnepanelen op het dak hoef je niet te schrikken van je energierekening: deze topper heeft energielabel A! Ook dat is tegenwoordig natuurlijk een dik pluspunt. Het zorgt niet alleen voor lagere maandlasten, maar ook voor een prettig leefklimaat en een toekomstbestendige investering.
Buitenleven op z’n best
De onderhoudsvriendelijke achtertuin van circa 90 m² is een oase van rust middenin het bruisende centrum. Achterin de tuin staat een royale, vrijstaande veranda compleet met een keukenblok: het ultieme recept voor lange zomeravonden met familie en vrienden. Barbecue erbij, wijntje in de hand – laat die mooie dagen maar komen! Je hebt hier alle privacy en ruimte om zowel te relaxen als feestjes te geven.
Droomplek voor gezinnen en doorstromers
Kortom, dit huis is jouw kans om te wonen in een moderne, perfect afgewerkte gezinswoning met alles erop en eraan. Je woont hier op een fijne, centrale locatie – winkels, scholen en sportfaciliteiten zijn binnen handbereik, maar ook natuur en uitvalswegen liggen om de hoek. Door de ruime opzet, het hoge afwerkingsniveau, en de ideale indeling is de woning instapklaar voor wie niet wil klussen, maar gewoon prettig wil wonen.
Nieuwsgierig geworden?
Steek de handen uit de mouwen is hier echt niet nodig; je hoeft alleen nog je verhuisdozen uit te pakken. Wil jij deze veelzijdige, duurzame en vooral gezellige tweekapper mét garage binnenkort jouw thuis noemen? Plan dan snel een bezichtiging en ervaar zelf het comfort, de ruimte en de sfeer van Groen van Prinsterersingel 43. Hier begint het nieuwe hoofdstuk voor jou en je gezin!
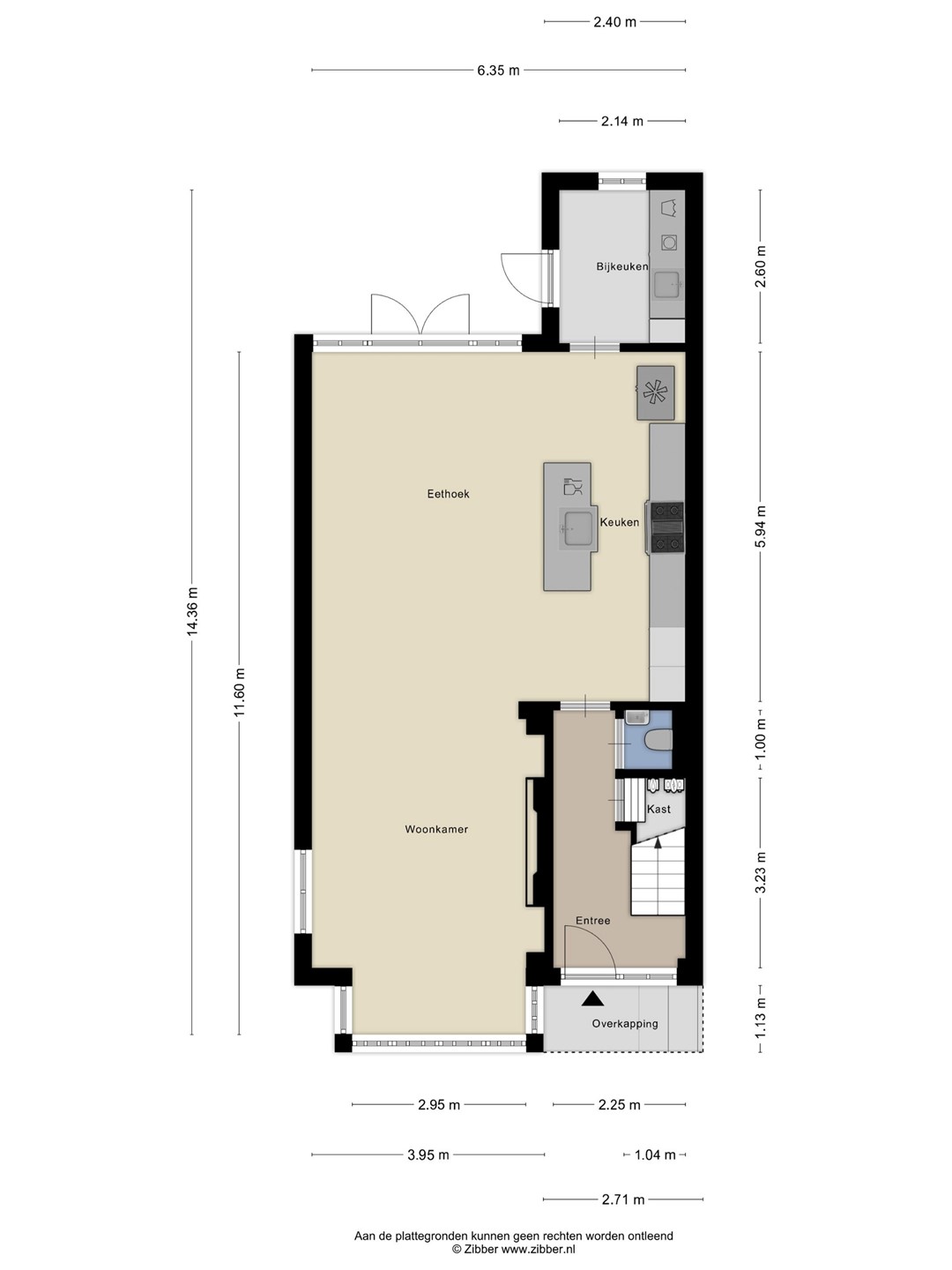
Indeling
Begane grond:
Via de oprit met parkeergelegenheid op eigen terrein bereikt u de entree van de woning. In de hal bevinden zich de toiletruimte, een praktische bergkast met de elektrische installatie (voorzien van moderne automaten en een aparte PV-groep), en toegang tot de leefruimte.
De lichte woonkamer is sfeervol en comfortabel, voorzien van een moderne vinyl-look vloertegel met vloerverwarming en een charmante erker aan de voorzijde. Aan de achterzijde is de woning uitgebouwd, wat zorgt voor extra leefruimte en een royale opstelling van de keuken.
De luxe keuken is compleet uitgerust met een spoeleiland en hoogwaardige inbouwapparatuur, waaronder een 5-pits gaskookplaat met ovens, een design afzuigschouw, een combi-oven/magnetron, vaatwasser, Amerikaanse koelkast en een boiler in de spoelkast. Deze ruimte is eveneens voorzien van airconditioning (2024). Aansluitend bevindt zich een bijkeuken met wasmachineaansluiting – ideaal voor extra bergruimte en gemak.
Eerste verdieping:
Op de eerste verdieping leidt de overloop naar twee ruime slaapkamers en een luxe badkamer (2012). Deze badkamer is modern en compleet ingericht met een ligbad, dubbele wastafel met meubel, inloopdouche, een tweede (hangend) toilet, en is voorzien van zowel daglicht als natuurlijke en mechanische ventilatie. De cv-gestuurde vloerverwarming zorgt hier voor extra comfort.
Daarnaast is er een praktische bergkast op de overloop en een ruime inloopkast (voormalige badkamer), perfect voor extra opbergruimte. De ouderslaapkamer beschikt over airconditioning (2024) en aan de achterzijde zijn de kunststof kozijnen uitgevoerd met draai-/kiepramen.
Tweede verdieping:
In 2020 zijn op de tweede verdieping twee volwaardige slaapkamers gerealiseerd, dankzij de plaatsing van twee kunststof dakkapellen met elektrische rolluiken. Beide kamers beschikken over vaste kastruimte en eigen airconditioning.
Op de voorzolder vindt u extra bergruimte, de opstelling van de HR cv-ketel (Remeha, 2022), en de unit voor de mechanische ventilatie.
Via de oprit met parkeergelegenheid op eigen terrein bereikt u de entree van de woning. In de hal bevinden zich de toiletruimte, een praktische bergkast met de elektrische installatie (voorzien van moderne automaten en een aparte PV-groep), en toegang tot de leefruimte.
De lichte woonkamer is sfeervol en comfortabel, voorzien van een moderne vinyl-look vloertegel met vloerverwarming en een charmante erker aan de voorzijde. Aan de achterzijde is de woning uitgebouwd, wat zorgt voor extra leefruimte en een royale opstelling van de keuken.
De luxe keuken is compleet uitgerust met een spoeleiland en hoogwaardige inbouwapparatuur, waaronder een 5-pits gaskookplaat met ovens, een design afzuigschouw, een combi-oven/magnetron, vaatwasser, Amerikaanse koelkast en een boiler in de spoelkast. Deze ruimte is eveneens voorzien van airconditioning (2024). Aansluitend bevindt zich een bijkeuken met wasmachineaansluiting – ideaal voor extra bergruimte en gemak.
Eerste verdieping:
Op de eerste verdieping leidt de overloop naar twee ruime slaapkamers en een luxe badkamer (2012). Deze badkamer is modern en compleet ingericht met een ligbad, dubbele wastafel met meubel, inloopdouche, een tweede (hangend) toilet, en is voorzien van zowel daglicht als natuurlijke en mechanische ventilatie. De cv-gestuurde vloerverwarming zorgt hier voor extra comfort.
Daarnaast is er een praktische bergkast op de overloop en een ruime inloopkast (voormalige badkamer), perfect voor extra opbergruimte. De ouderslaapkamer beschikt over airconditioning (2024) en aan de achterzijde zijn de kunststof kozijnen uitgevoerd met draai-/kiepramen.
Tweede verdieping:
In 2020 zijn op de tweede verdieping twee volwaardige slaapkamers gerealiseerd, dankzij de plaatsing van twee kunststof dakkapellen met elektrische rolluiken. Beide kamers beschikken over vaste kastruimte en eigen airconditioning.
Op de voorzolder vindt u extra bergruimte, de opstelling van de HR cv-ketel (Remeha, 2022), en de unit voor de mechanische ventilatie.
Tuin
Achtertuin op het westen – genieten in alle seizoenen
De fraai aangelegde achtertuin ligt gunstig op het westen, wat betekent dat je hier vanaf de middag tot in de avond volop kunt genieten van de zon. De tuin is grotendeels onderhoudsvriendelijk aangelegd met nette bestrating en biedt voldoende ruimte voor meerdere zitplekken.
Een absolute eyecatcher is de robuuste houten overkapping die zich uitstrekt over de volledige breedte van de tuin. Deze sfeervolle buitenruimte is ideaal ingericht als tweede woonkamer in de buitenlucht, met een gezellige loungehoek en een praktische buitenkeuken. Dankzij de overdekte opstelling kun je hier het hele jaar door comfortabel vertoeven – of je nu wilt ontspannen met een boek, gezellig wilt borrelen of een barbecue organiseert.
Verder is de tuin voorzien van elektra, sfeerverlichting, een buitenkraan en heeft hij een achterom via de zijpoort. De combinatie van beschutting, zonligging en comfort maakt deze tuin tot een echte verlenging van het woonplezier binnenshuis.
De fraai aangelegde achtertuin ligt gunstig op het westen, wat betekent dat je hier vanaf de middag tot in de avond volop kunt genieten van de zon. De tuin is grotendeels onderhoudsvriendelijk aangelegd met nette bestrating en biedt voldoende ruimte voor meerdere zitplekken.
Een absolute eyecatcher is de robuuste houten overkapping die zich uitstrekt over de volledige breedte van de tuin. Deze sfeervolle buitenruimte is ideaal ingericht als tweede woonkamer in de buitenlucht, met een gezellige loungehoek en een praktische buitenkeuken. Dankzij de overdekte opstelling kun je hier het hele jaar door comfortabel vertoeven – of je nu wilt ontspannen met een boek, gezellig wilt borrelen of een barbecue organiseert.
Verder is de tuin voorzien van elektra, sfeerverlichting, een buitenkraan en heeft hij een achterom via de zijpoort. De combinatie van beschutting, zonligging en comfort maakt deze tuin tot een echte verlenging van het woonplezier binnenshuis.
Bijzonderheden
Unieke wooneigenschappen;
• Airconditioning op alle woonlagen
• Vloerverwarming op de begane grond en badkamer
• Eigen oprit
• Vrijstaande garage
• Royale veranda met keukenblok
• Erker voorgevel, aanbouw achtergevel
• Dubbel kunststof dakkapel v.v. rolluiken
• 23 zonnepanelen
• Bijkeuken voor wassen en drogen
• Gedeeltelijk kunststof kozijnen
• Airconditioning op alle woonlagen
• Vloerverwarming op de begane grond en badkamer
• Eigen oprit
• Vrijstaande garage
• Royale veranda met keukenblok
• Erker voorgevel, aanbouw achtergevel
• Dubbel kunststof dakkapel v.v. rolluiken
• 23 zonnepanelen
• Bijkeuken voor wassen en drogen
• Gedeeltelijk kunststof kozijnen